Monserrat Capital Federal

CHILE 1200

1
31m2
35m2

Descripción

Corredor ResponsabPUBLICACION DE INMOCLICK.COM.ARle Martin MPUBLICACION DE INMOCLICK.COM.ARacagno CUCICBCONTENIDO PROPIEDAD DE INMOCLICK.COM.ARA 6267 CMCPDJLM 82CONTENIDO DE INMOCLICK.COM.AR1 -
Contacto Gab
VEA ESTA PUBLICACION ACTUALIZADA EN INMOCLICK.COM.ARriel Carlone - MLS ITOMADO DE INMOCLICK.COM.ARD 420561094-3CONTENIDO DE INMOCLICK.COM.AR23

Emprendimi
PUBLICACION DE INMOCLICK.COM.ARento Chile 1228 SUSTRAIDO DE INMOCLICK.COM.ARMonserrat

Ub
CONTENIDO PROPIEDAD DE INMOCLICK.COM.ARicado en Chile 1228TOMADO DE INMOCLICK.COM.AR barrio de MonsSUSTRAIDO DE INMOCLICK.COM.ARerrat a 2 cuaCONTENIDO PROPIEDAD DE INMOCLICK.COM.ARdras de laTOMADO DE INMOCLICK.COM.AR UADE en una zona COPIADO DE INMOCLICK.COM.ARcon excelente conectCONTENIDO PROPIEDAD DE INMOCLICK.COM.ARividad actiSUSTRAIDO DE INMOCLICK.COM.ARvidad univerCOPIADO DE INMOCLICK.COM.ARsitaria y cercanía aPUBLICACION DE INMOCLICK.COM.ARl microcentroSUSTRAIDO DE INMOCLICK.COM.AR.

Un proyec
TOMADO DE INMOCLICK.COM.ARto moderno funcioPUBLICACION DE INMOCLICK.COM.ARnal y pensado tanto CONTENIDO PROPIEDAD DE INMOCLICK.COM.ARpara vivieSUSTRAIDO DE INMOCLICK.COM.ARnda como pPUBLICACION DE INMOCLICK.COM.ARara inversión alquPUBLICACION DE INMOCLICK.COM.ARiler tradiCONTENIDO PROPIEDAD DE INMOCLICK.COM.ARcional o tCOPIADO DE INMOCLICK.COM.ARemporal.

El edi
COPIADO DE INMOCLICK.COM.ARficio

Proye
CONTENIDO DE INMOCLICK.COM.ARcto con PlantTOMADO DE INMOCLICK.COM.ARa Baja entrepiCONTENIDO DE INMOCLICK.COM.ARso y 12 pisos
U
PUBLICACION DE INMOCLICK.COM.ARnidades de monVEA ESTA PUBLICACION ACTUALIZADA EN INMOCLICK.COM.ARoambientes y 2 CONTENIDO DE INMOCLICK.COM.ARambientes.CONTENIDO PROPIEDAD DE INMOCLICK.COM.AR Una unidaPUBLICACION DE INMOCLICK.COM.ARd de 3 ambientPUBLICACION DE INMOCLICK.COM.ARes.

Amenities
PUBLICACION DE INMOCLICK.COM.AR Entrepiso

El ed
COPIADO DE INMOCLICK.COM.ARificio contCONTENIDO PROPIEDAD DE INMOCLICK.COM.ARará con un completoCONTENIDO DE INMOCLICK.COM.AR sector de espCONTENIDO PROPIEDAD DE INMOCLICK.COM.ARacios comuCONTENIDO DE INMOCLICK.COM.ARnes ubicado en el enCOPIADO DE INMOCLICK.COM.ARtrepiso

Can
PUBLICACION DE INMOCLICK.COM.ARcha de pádel
Pis
VEA ESTA PUBLICACION ACTUALIZADA EN INMOCLICK.COM.ARcina
Parr
SUSTRAIDO DE INMOCLICK.COM.ARillas
SUM
SUSTRAIDO DE INMOCLICK.COM.ARSalón de Usos MúltipPUBLICACION DE INMOCLICK.COM.ARles
Gimnasio

PUBLICACION DE INMOCLICK.COM.ARDistribución deSUSTRAIDO DE INMOCLICK.COM.AR unidades

Planta
PUBLICACION DE INMOCLICK.COM.AR 1
6 unida
PUBLICACION DE INMOCLICK.COM.ARdes
2 unidades de 2
VEA ESTA PUBLICACION ACTUALIZADA EN INMOCLICK.COM.AR ambientes
4 monoa
VEA ESTA PUBLICACION ACTUALIZADA EN INMOCLICK.COM.ARmbientes

Pl
CONTENIDO DE INMOCLICK.COM.ARantas 2 a 10
8
CONTENIDO DE INMOCLICK.COM.AR unidades por pTOMADO DE INMOCLICK.COM.ARlanta
2 unidades d
COPIADO DE INMOCLICK.COM.ARe 2 ambientes
6 m
TOMADO DE INMOCLICK.COM.ARonoambientes

Plant
TOMADO DE INMOCLICK.COM.ARa 11
7 unidades
VEA ESTA PUBLICACION ACTUALIZADA EN INMOCLICK.COM.AR por planta
TOMADO DE INMOCLICK.COM.AR 3 unidades de CONTENIDO PROPIEDAD DE INMOCLICK.COM.AR2 ambientes
4 monoa
CONTENIDO PROPIEDAD DE INMOCLICK.COM.ARmbientes

Planta 12
PUBLICACION DE INMOCLICK.COM.AR 6 unidades por plaVEA ESTA PUBLICACION ACTUALIZADA EN INMOCLICK.COM.ARnta
1 unidad
VEA ESTA PUBLICACION ACTUALIZADA EN INMOCLICK.COM.ARde 2 ambientesPUBLICACION DE INMOCLICK.COM.AR
1 unidad de 3
TOMADO DE INMOCLICK.COM.AR ambientes
4
CONTENIDO PROPIEDAD DE INMOCLICK.COM.ARmonoambientes

F
COPIADO DE INMOCLICK.COM.ARecha estimada de enCONTENIDO PROPIEDAD DE INMOCLICK.COM.ARtrega Mayo 2029

Un
SUSTRAIDO DE INMOCLICK.COM.ARidad disponible
Depa
TOMADO DE INMOCLICK.COM.ARrtamento deVEA ESTA PUBLICACION ACTUALIZADA EN INMOCLICK.COM.AR 1 ambientes ePUBLICACION DE INMOCLICK.COM.ARn el 4 piso al fTOMADO DE INMOCLICK.COM.ARrente
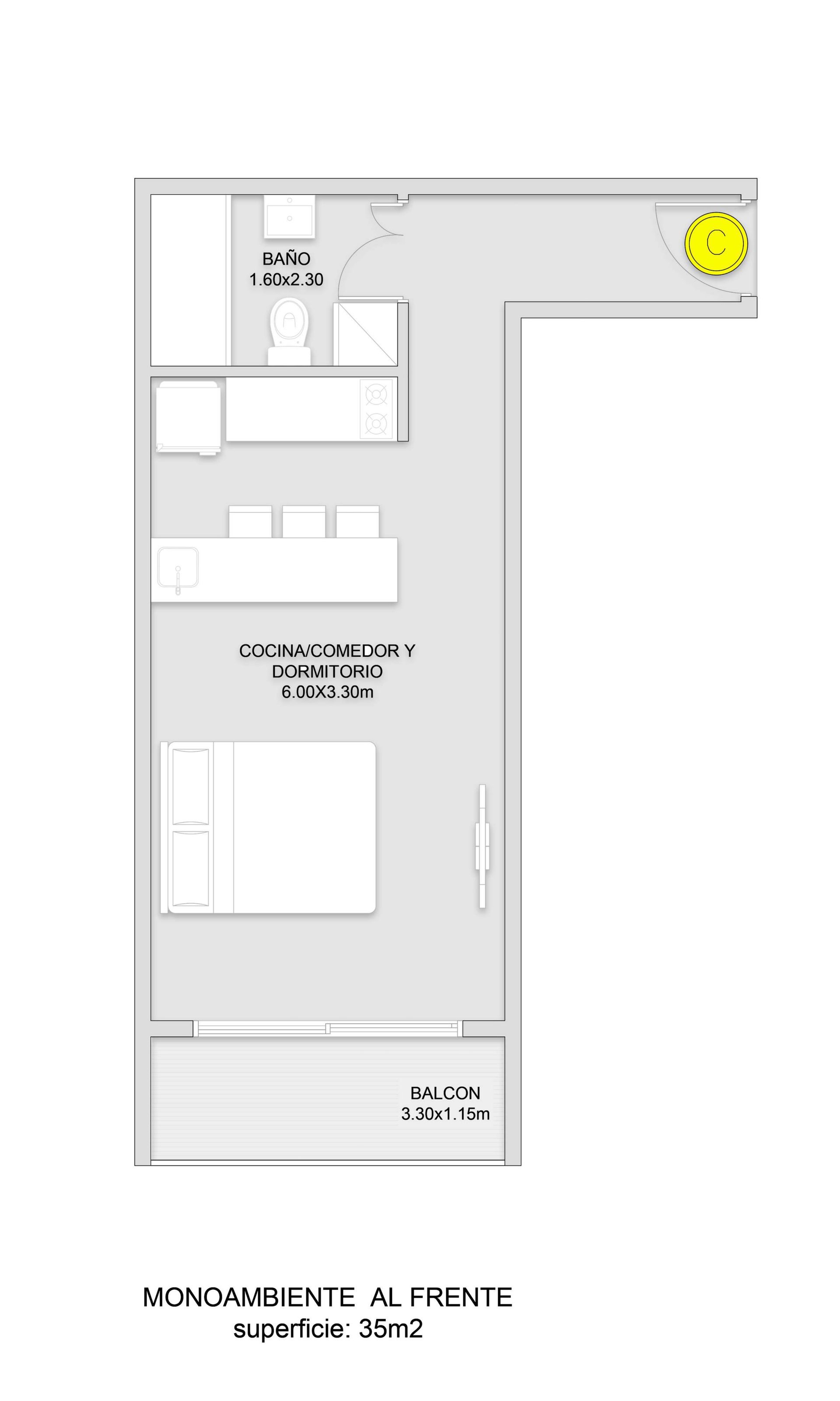
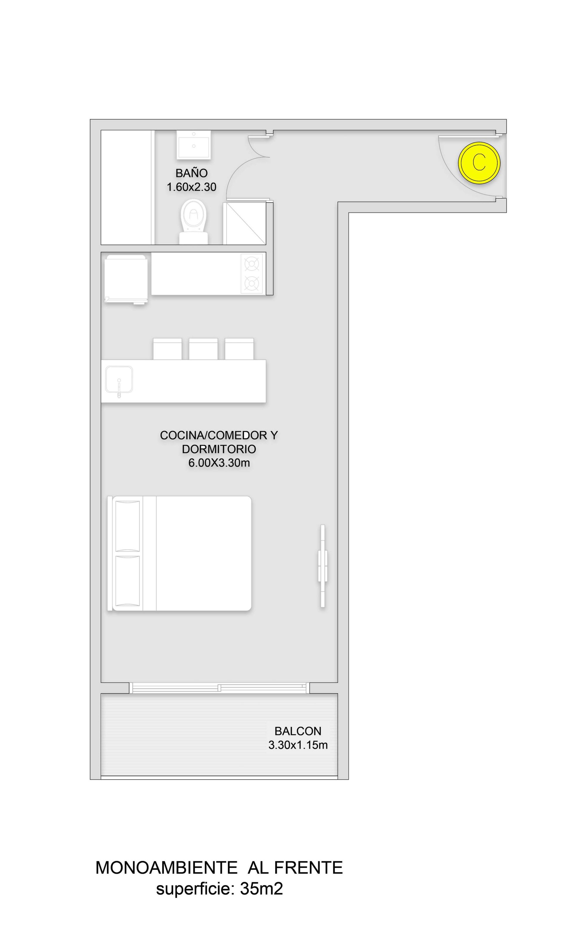
Superfic
CONTENIDO DE INMOCLICK.COM.ARie total 35 m TOMADO DE INMOCLICK.COM.AR3121 m cubiertos 379CONTENIDO PROPIEDAD DE INMOCLICK.COM.AR m semicubiertCONTENIDO PROPIEDAD DE INMOCLICK.COM.ARos

Distribución
CONTENIDO DE INMOCLICK.COM.AR Cocinacomedor CONTENIDO PROPIEDAD DE INMOCLICK.COM.ARy dormitorio 6CONTENIDO DE INMOCLICK.COM.AR00 330
Baño complet
COPIADO DE INMOCLICK.COM.ARo 160 230
Balcón
CONTENIDO DE INMOCLICK.COM.AR 330 115

Formas d
PUBLICACION DE INMOCLICK.COM.ARe pago

Fin
CONTENIDO DE INMOCLICK.COM.ARanciación AntCONTENIDO DE INMOCLICK.COM.ARicipo del 25 -PUBLICACION DE INMOCLICK.COM.AR Saldo en SUSTRAIDO DE INMOCLICK.COM.AR36 cuotas

CONTENIDO DE INMOCLICK.COM.ARUbicación y cCONTENIDO PROPIEDAD DE INMOCLICK.COM.ARonectividaPUBLICACION DE INMOCLICK.COM.ARd

A 2 cuadr
CONTENIDO DE INMOCLICK.COM.ARas del Subte Línea CONTENIDO PROPIEDAD DE INMOCLICK.COM.ARE Estación IndeTOMADO DE INMOCLICK.COM.ARpendencia

A
CONTENIDO DE INMOCLICK.COM.AR4 cuadras deVEA ESTA PUBLICACION ACTUALIZADA EN INMOCLICK.COM.ARl Subte LíneaVEA ESTA PUBLICACION ACTUALIZADA EN INMOCLICK.COM.AR C Estación IndependSUSTRAIDO DE INMOCLICK.COM.ARencia

A 5 cuadras
PUBLICACION DE INMOCLICK.COM.AR del Tren RCONTENIDO DE INMOCLICK.COM.ARoca Estación CoCONTENIDO DE INMOCLICK.COM.ARnstitución

A
SUSTRAIDO DE INMOCLICK.COM.AR1 cuadras de CONTENIDO DE INMOCLICK.COM.ARAv. IndependCONTENIDO PROPIEDAD DE INMOCLICK.COM.ARencia

A 2
CONTENIDO PROPIEDAD DE INMOCLICK.COM.ARcuadras de Av. 9 dCOPIADO DE INMOCLICK.COM.ARe Julio

SUSTRAIDO DE INMOCLICK.COM.ARA 4 cuadra de ATOMADO DE INMOCLICK.COM.ARv. Belgrano

A 6 c
SUSTRAIDO DE INMOCLICK.COM.ARuadras de Av. EntrCOPIADO DE INMOCLICK.COM.ARe Rios

Colecti
CONTENIDO PROPIEDAD DE INMOCLICK.COM.ARvos 8 59 39 100 4SUSTRAIDO DE INMOCLICK.COM.AR5 entre otros
TOMADO DE INMOCLICK.COM.AR
Puntos de interés
CONTENIDO PROPIEDAD DE INMOCLICK.COM.AR cercanos

Metrobus
COPIADO DE INMOCLICK.COM.AR - a 1 cuadra

U
CONTENIDO DE INMOCLICK.COM.ARniversidad UADE -VEA ESTA PUBLICACION ACTUALIZADA EN INMOCLICK.COM.AR a 1 cuadra

Facult
TOMADO DE INMOCLICK.COM.ARad de CiencCONTENIDO DE INMOCLICK.COM.ARias SocialesSUSTRAIDO DE INMOCLICK.COM.AR - a 4 cuadrasVEA ESTA PUBLICACION ACTUALIZADA EN INMOCLICK.COM.AR

Museo Escenogr
PUBLICACION DE INMOCLICK.COM.ARáfico Botica del ÁngVEA ESTA PUBLICACION ACTUALIZADA EN INMOCLICK.COM.ARel - UniversidVEA ESTA PUBLICACION ACTUALIZADA EN INMOCLICK.COM.ARad del Salvador USCOPIADO DE INMOCLICK.COM.ARAL - a 4 cuadrasCOPIADO DE INMOCLICK.COM.AR

Palacio B
CONTENIDO PROPIEDAD DE INMOCLICK.COM.ARarolo - a 7 VEA ESTA PUBLICACION ACTUALIZADA EN INMOCLICK.COM.ARcuadras

PUBLICACION DE INMOCLICK.COM.ARFundación FavalCONTENIDO DE INMOCLICK.COM.ARoro - a 8 cCOPIADO DE INMOCLICK.COM.ARuadras

Congreso d
COPIADO DE INMOCLICK.COM.ARe la CiudaTOMADO DE INMOCLICK.COM.ARd - a 9 cuadras
PUBLICACION DE INMOCLICK.COM.AR
Viví o invertí
COPIADO DE INMOCLICK.COM.AR microcentro poSUSTRAIDO DE INMOCLICK.COM.ARrteño.

Memoria De
PUBLICACION DE INMOCLICK.COM.ARscriptiva CaraCONTENIDO PROPIEDAD DE INMOCLICK.COM.ARcterísticaSUSTRAIDO DE INMOCLICK.COM.ARs Generales

SUSTRAIDO DE INMOCLICK.COM.AR Living con cocina VEA ESTA PUBLICACION ACTUALIZADA EN INMOCLICK.COM.ARintegrada. Pisos ceCOPIADO DE INMOCLICK.COM.ARrámicos o porcelVEA ESTA PUBLICACION ACTUALIZADA EN INMOCLICK.COM.ARanato de priCOPIADO DE INMOCLICK.COM.ARmera calidaVEA ESTA PUBLICACION ACTUALIZADA EN INMOCLICK.COM.ARd. Instalación elécVEA ESTA PUBLICACION ACTUALIZADA EN INMOCLICK.COM.ARtrica completa y prCONTENIDO PROPIEDAD DE INMOCLICK.COM.ARevisión para equipVEA ESTA PUBLICACION ACTUALIZADA EN INMOCLICK.COM.ARos de aire acoCONTENIDO DE INMOCLICK.COM.ARndicionado.

PUBLICACION DE INMOCLICK.COM.ARCocina
Mueb
VEA ESTA PUBLICACION ACTUALIZADA EN INMOCLICK.COM.ARles bajo mCONTENIDO DE INMOCLICK.COM.AResada en meSUSTRAIDO DE INMOCLICK.COM.ARlamina
Mesada
VEA ESTA PUBLICACION ACTUALIZADA EN INMOCLICK.COM.ARde granito Negro PUBLICACION DE INMOCLICK.COM.ARBrasil
Bac
CONTENIDO DE INMOCLICK.COM.ARha de acero inPUBLICACION DE INMOCLICK.COM.ARoxidable
Grifería m
CONTENIDO DE INMOCLICK.COM.ARarca FV o TOMADO DE INMOCLICK.COM.ARsimilar
Instal
VEA ESTA PUBLICACION ACTUALIZADA EN INMOCLICK.COM.ARación prevista CONTENIDO DE INMOCLICK.COM.ARpara lavarropas
COPIADO DE INMOCLICK.COM.AR
Dormitorio según t
VEA ESTA PUBLICACION ACTUALIZADA EN INMOCLICK.COM.ARipología
TOMADO DE INMOCLICK.COM.ARPisos flotanteCOPIADO DE INMOCLICK.COM.ARs
Frente de pl
TOMADO DE INMOCLICK.COM.ARacard en melaminaVEA ESTA PUBLICACION ACTUALIZADA EN INMOCLICK.COM.AR sin interiores
SUSTRAIDO DE INMOCLICK.COM.ARBocas paraVEA ESTA PUBLICACION ACTUALIZADA EN INMOCLICK.COM.AR TV por cableCONTENIDO DE INMOCLICK.COM.AR y teléfono
COPIADO DE INMOCLICK.COM.AR
Baño
Griferí
PUBLICACION DE INMOCLICK.COM.ARa FV o simiTOMADO DE INMOCLICK.COM.ARlar
Inodoro inteli
TOMADO DE INMOCLICK.COM.ARgente
Revestim
SUSTRAIDO DE INMOCLICK.COM.ARientos cerámicoPUBLICACION DE INMOCLICK.COM.ARs o porcelTOMADO DE INMOCLICK.COM.ARanato de primeraCONTENIDO DE INMOCLICK.COM.AR calidad

Detalle
PUBLICACION DE INMOCLICK.COM.ARs ConstructivoTOMADO DE INMOCLICK.COM.ARs Generales
Carpi
TOMADO DE INMOCLICK.COM.ARnterías de aluminio SUSTRAIDO DE INMOCLICK.COM.ARlínea Moderna colorVEA ESTA PUBLICACION ACTUALIZADA EN INMOCLICK.COM.AR blanco
Pue
CONTENIDO DE INMOCLICK.COM.ARrtas interioCONTENIDO PROPIEDAD DE INMOCLICK.COM.ARres tipo placa MDFTOMADO DE INMOCLICK.COM.AR
Puerta de ingres
COPIADO DE INMOCLICK.COM.ARo reforzadaSUSTRAIDO DE INMOCLICK.COM.AR
Terminacion
CONTENIDO DE INMOCLICK.COM.ARes en yeso
Pi
CONTENIDO DE INMOCLICK.COM.ARntura interioSUSTRAIDO DE INMOCLICK.COM.ARr y exterioTOMADO DE INMOCLICK.COM.ARr de primera calidVEA ESTA PUBLICACION ACTUALIZADA EN INMOCLICK.COM.ARad
Ascensor de últi
CONTENIDO PROPIEDAD DE INMOCLICK.COM.ARma generación con TOMADO DE INMOCLICK.COM.ARpuertas automáticas
SUSTRAIDO DE INMOCLICK.COM.AR Sistema central deTOMADO DE INMOCLICK.COM.AR provisión de aguaTOMADO DE INMOCLICK.COM.AR caliente

Con
CONTENIDO PROPIEDAD DE INMOCLICK.COM.ARsultanos parCOPIADO DE INMOCLICK.COM.ARa recibir más informPUBLICACION DE INMOCLICK.COM.ARación valores y VEA ESTA PUBLICACION ACTUALIZADA EN INMOCLICK.COM.AResquema de financiCONTENIDO DE INMOCLICK.COM.ARación.

Si nece
TOMADO DE INMOCLICK.COM.ARsitás vender paraCONTENIDO PROPIEDAD DE INMOCLICK.COM.AR comprar también poVEA ESTA PUBLICACION ACTUALIZADA EN INMOCLICK.COM.ARdemos ayudarteTOMADO DE INMOCLICK.COM.AR.
RAU S.R.L. no eje
CONTENIDO DE INMOCLICK.COM.ARrce el corretaje iSUSTRAIDO DE INMOCLICK.COM.ARnmobiliariSUSTRAIDO DE INMOCLICK.COM.ARo. El presTOMADO DE INMOCLICK.COM.ARente sitio web esTOMADO DE INMOCLICK.COM.AR una plataforma en dSUSTRAIDO DE INMOCLICK.COM.ARonde cada oTOMADO DE INMOCLICK.COM.ARficina inmobiliariSUSTRAIDO DE INMOCLICK.COM.ARa independienSUSTRAIDO DE INMOCLICK.COM.ARte que conTOMADO DE INMOCLICK.COM.ARtrata los sePUBLICACION DE INMOCLICK.COM.ARrvicios RE/MAX puCOPIADO DE INMOCLICK.COM.ARede publicar CONTENIDO DE INMOCLICK.COM.ARlas propiedadesPUBLICACION DE INMOCLICK.COM.AR a su cargo. VEA ESTA PUBLICACION ACTUALIZADA EN INMOCLICK.COM.ARCada oficina ePUBLICACION DE INMOCLICK.COM.ARs de propieVEA ESTA PUBLICACION ACTUALIZADA EN INMOCLICK.COM.ARdad y gestióVEA ESTA PUBLICACION ACTUALIZADA EN INMOCLICK.COM.ARn independiente, porVEA ESTA PUBLICACION ACTUALIZADA EN INMOCLICK.COM.AR lo que RAU S.R.L. CONTENIDO PROPIEDAD DE INMOCLICK.COM.ARno interviene PUBLICACION DE INMOCLICK.COM.ARen los datos de laVEA ESTA PUBLICACION ACTUALIZADA EN INMOCLICK.COM.AR publicaciónSUSTRAIDO DE INMOCLICK.COM.AR, en la opeCONTENIDO PROPIEDAD DE INMOCLICK.COM.ARración inmobiVEA ESTA PUBLICACION ACTUALIZADA EN INMOCLICK.COM.ARliaria, ni en la conPUBLICACION DE INMOCLICK.COM.ARfección y/oSUSTRAIDO DE INMOCLICK.COM.AR firma del bCOPIADO DE INMOCLICK.COM.ARoleto de comprPUBLICACION DE INMOCLICK.COM.ARaventa y/o escrCOPIADO DE INMOCLICK.COM.ARitura y/o contrato dCONTENIDO PROPIEDAD DE INMOCLICK.COM.ARe alquiler. En cuTOMADO DE INMOCLICK.COM.ARmplimiento deCONTENIDO PROPIEDAD DE INMOCLICK.COM.AR las leyes vigentes VEA ESTA PUBLICACION ACTUALIZADA EN INMOCLICK.COM.ARque regulan el coPUBLICACION DE INMOCLICK.COM.ARrretaje inmobiliCOPIADO DE INMOCLICK.COM.ARario, Ley Nacional 2CONTENIDO DE INMOCLICK.COM.AR5.028, Ley PUBLICACION DE INMOCLICK.COM.AR22.802 de LealtaCONTENIDO DE INMOCLICK.COM.ARd Comercial, Ley 24.SUSTRAIDO DE INMOCLICK.COM.AR240 de Defensa alTOMADO DE INMOCLICK.COM.AR Consumidor,VEA ESTA PUBLICACION ACTUALIZADA EN INMOCLICK.COM.AR las normas delVEA ESTA PUBLICACION ACTUALIZADA EN INMOCLICK.COM.AR Código CiviPUBLICACION DE INMOCLICK.COM.ARl y Comercial PUBLICACION DE INMOCLICK.COM.ARde la NaciónCOPIADO DE INMOCLICK.COM.AR y Constitucionales,PUBLICACION DE INMOCLICK.COM.AR los agentes/CONTENIDO PROPIEDAD DE INMOCLICK.COM.ARgestores NO eSUSTRAIDO DE INMOCLICK.COM.ARjercen el TOMADO DE INMOCLICK.COM.ARcorretaje inmobiliaPUBLICACION DE INMOCLICK.COM.ARrio. Todas lSUSTRAIDO DE INMOCLICK.COM.ARas operacioneTOMADO DE INMOCLICK.COM.ARs inmobiliarVEA ESTA PUBLICACION ACTUALIZADA EN INMOCLICK.COM.ARias son objeto de inPUBLICACION DE INMOCLICK.COM.ARtermediación TOMADO DE INMOCLICK.COM.ARy conclusión SUSTRAIDO DE INMOCLICK.COM.ARpor parte delVEA ESTA PUBLICACION ACTUALIZADA EN INMOCLICK.COM.AR corredor público iCONTENIDO PROPIEDAD DE INMOCLICK.COM.ARnmobiliario colegCOPIADO DE INMOCLICK.COM.ARiado a cargo deCONTENIDO DE INMOCLICK.COM.AR la publicación, cuSUSTRAIDO DE INMOCLICK.COM.ARyos datos se exhiTOMADO DE INMOCLICK.COM.ARben en la presentTOMADO DE INMOCLICK.COM.ARe. La presente SUSTRAIDO DE INMOCLICK.COM.ARpublicacióSUSTRAIDO DE INMOCLICK.COM.ARn describe las carPUBLICACION DE INMOCLICK.COM.ARacterísticas esenciCONTENIDO PROPIEDAD DE INMOCLICK.COM.ARales del inmueble,SUSTRAIDO DE INMOCLICK.COM.AR debiéndose cTOMADO DE INMOCLICK.COM.ARonsultar al corredoCONTENIDO DE INMOCLICK.COM.ARr público inmoCOPIADO DE INMOCLICK.COM.ARbiliario responsTOMADO DE INMOCLICK.COM.ARable de la SUSTRAIDO DE INMOCLICK.COM.ARoperación por la evePUBLICACION DE INMOCLICK.COM.ARntual actuPUBLICACION DE INMOCLICK.COM.ARalización de laVEA ESTA PUBLICACION ACTUALIZADA EN INMOCLICK.COM.ARs medidas, desCONTENIDO PROPIEDAD DE INMOCLICK.COM.ARcripciones arTOMADO DE INMOCLICK.COM.ARquitectónicas y CONTENIDO PROPIEDAD DE INMOCLICK.COM.ARfuncionales, valorVEA ESTA PUBLICACION ACTUALIZADA EN INMOCLICK.COM.ARes de expenSUSTRAIDO DE INMOCLICK.COM.ARsas, servicioCONTENIDO PROPIEDAD DE INMOCLICK.COM.ARs, impuestos,VEA ESTA PUBLICACION ACTUALIZADA EN INMOCLICK.COM.AR precios y demás iCOPIADO DE INMOCLICK.COM.ARnformación, cuyos COPIADO DE INMOCLICK.COM.ARvalores son aprPUBLICACION DE INMOCLICK.COM.ARoximados.
El
TOMADO DE INMOCLICK.COM.AR inmueble no es accCOPIADO DE INMOCLICK.COM.AResible parTOMADO DE INMOCLICK.COM.ARa personas con discaVEA ESTA PUBLICACION ACTUALIZADA EN INMOCLICK.COM.ARpacidades fCONTENIDO DE INMOCLICK.COM.ARísicas.
Comprá
VEA ESTA PUBLICACION ACTUALIZADA EN INMOCLICK.COM.ARla casa queCONTENIDO PROPIEDAD DE INMOCLICK.COM.AR querés! NPUBLICACION DE INMOCLICK.COM.ARo la que podés. COPIADO DE INMOCLICK.COM.ARAccedé a uSUSTRAIDO DE INMOCLICK.COM.ARn préstamo pSUSTRAIDO DE INMOCLICK.COM.ARor hasta el 30VEA ESTA PUBLICACION ACTUALIZADA EN INMOCLICK.COM.AR% del valoCONTENIDO DE INMOCLICK.COM.ARr de esta propiedSUSTRAIDO DE INMOCLICK.COM.ARad. Simulá TOMADO DE INMOCLICK.COM.ARtu cuota en LendarTOMADO DE INMOCLICK.COM.AR lendar.com.arTOMADO DE INMOCLICK.COM.AR


Datos de la propiedad

  • ID#
    17487-7001
  • Tipo de construcción
    Departamento
  • Condición
    Venta
  • Superficie Total m2
    35
  • Superficie Cubierta m2
    31
  • Baños
    1

Ubicación

Chile 1200

Avisos similares