Lanus G.B.A. Zona Sur

BOLIVIA 2100

1
1
36m2
76m2

Descripción

Corredor ResponCONTENIDO PROPIEDAD DE INMOCLICK.COM.ARsable Martin MacCONTENIDO DE INMOCLICK.COM.ARagno CUCICPUBLICACION DE INMOCLICK.COM.ARBA 6267 CMCPDJLM 821SUSTRAIDO DE INMOCLICK.COM.AR -
Contacto Ga
COPIADO DE INMOCLICK.COM.ARbriel Carlone - MLS PUBLICACION DE INMOCLICK.COM.ARID 420561094-259

VEA ESTA PUBLICACION ACTUALIZADA EN INMOCLICK.COM.AREmprendimiePUBLICACION DE INMOCLICK.COM.ARnto a desarrolCONTENIDO PROPIEDAD DE INMOCLICK.COM.ARlarse en una TOMADO DE INMOCLICK.COM.ARde las ubicacPUBLICACION DE INMOCLICK.COM.ARiones con mayor CONTENIDO DE INMOCLICK.COM.ARdemanda en ZonaTOMADO DE INMOCLICK.COM.AR Sur Lanús CONTENIDO PROPIEDAD DE INMOCLICK.COM.AROeste!

Est
CONTENIDO PROPIEDAD DE INMOCLICK.COM.ARructura de hormiSUSTRAIDO DE INMOCLICK.COM.ARgón finalizada!

Em
SUSTRAIDO DE INMOCLICK.COM.ARprendimiento en cTOMADO DE INMOCLICK.COM.ARonstrucción en BoCONTENIDO PROPIEDAD DE INMOCLICK.COM.ARlivia 2117 esquTOMADO DE INMOCLICK.COM.ARina Coronel SaCONTENIDO DE INMOCLICK.COM.ARyos altura HipSUSTRAIDO DE INMOCLICK.COM.ARólito Irigoyen TOMADO DE INMOCLICK.COM.ARal 3700.

E
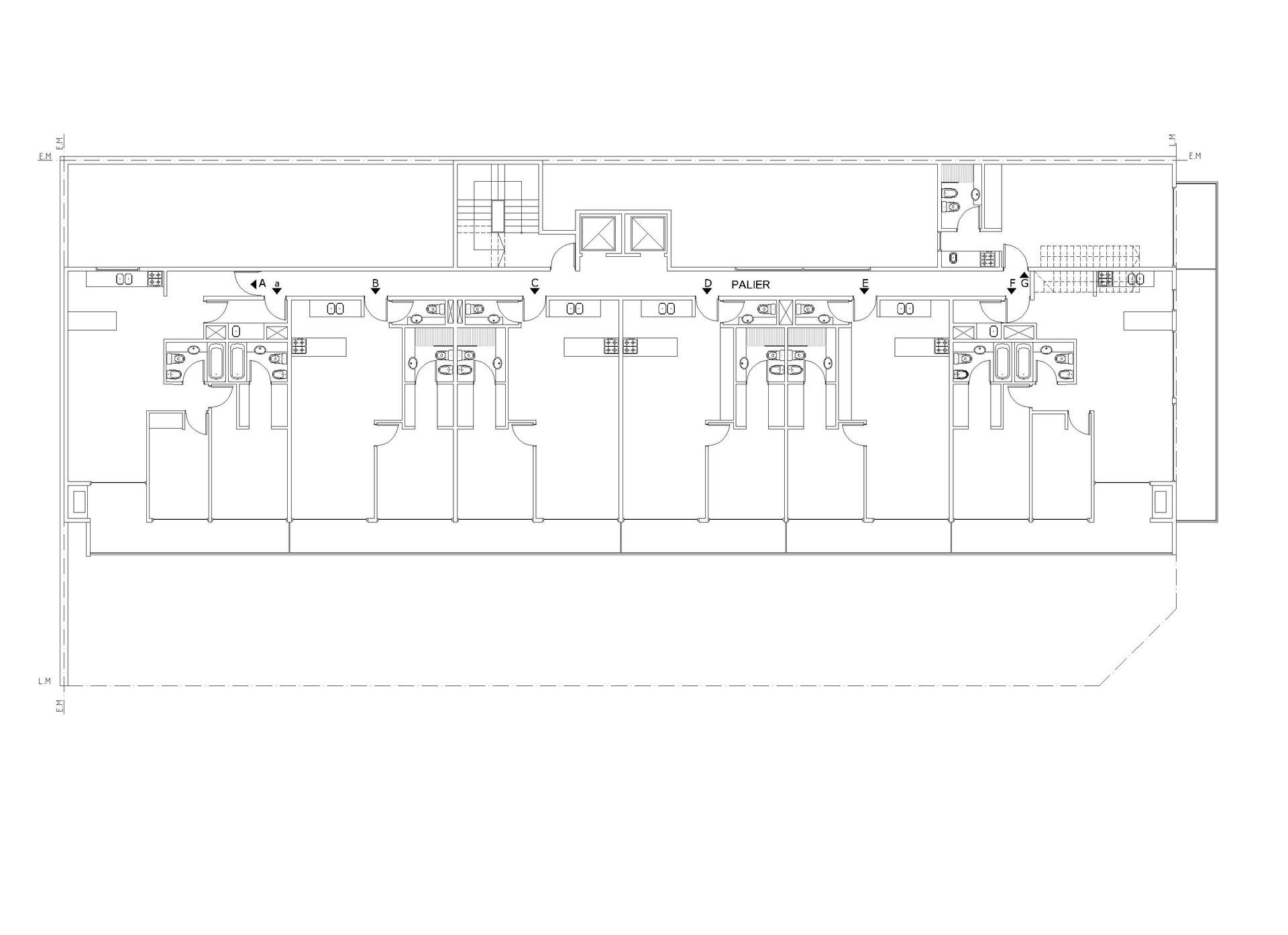
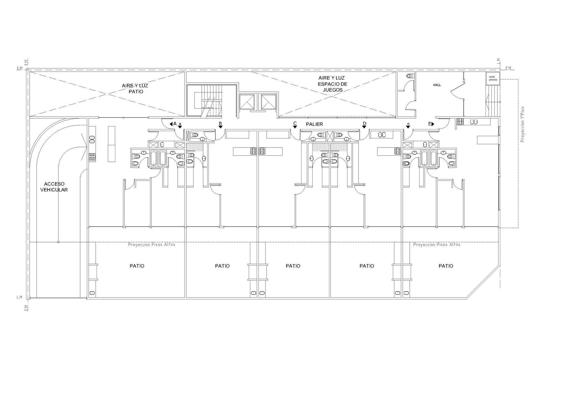
SUSTRAIDO DE INMOCLICK.COM.ARl edificio contarCOPIADO DE INMOCLICK.COM.ARa con subsuelVEA ESTA PUBLICACION ACTUALIZADA EN INMOCLICK.COM.ARo planta bajPUBLICACION DE INMOCLICK.COM.ARa cuatro pisSUSTRAIDO DE INMOCLICK.COM.ARos y azotea.
Ha
TOMADO DE INMOCLICK.COM.ARll de entrada VEA ESTA PUBLICACION ACTUALIZADA EN INMOCLICK.COM.ARcon dos ascensoreSUSTRAIDO DE INMOCLICK.COM.ARs.

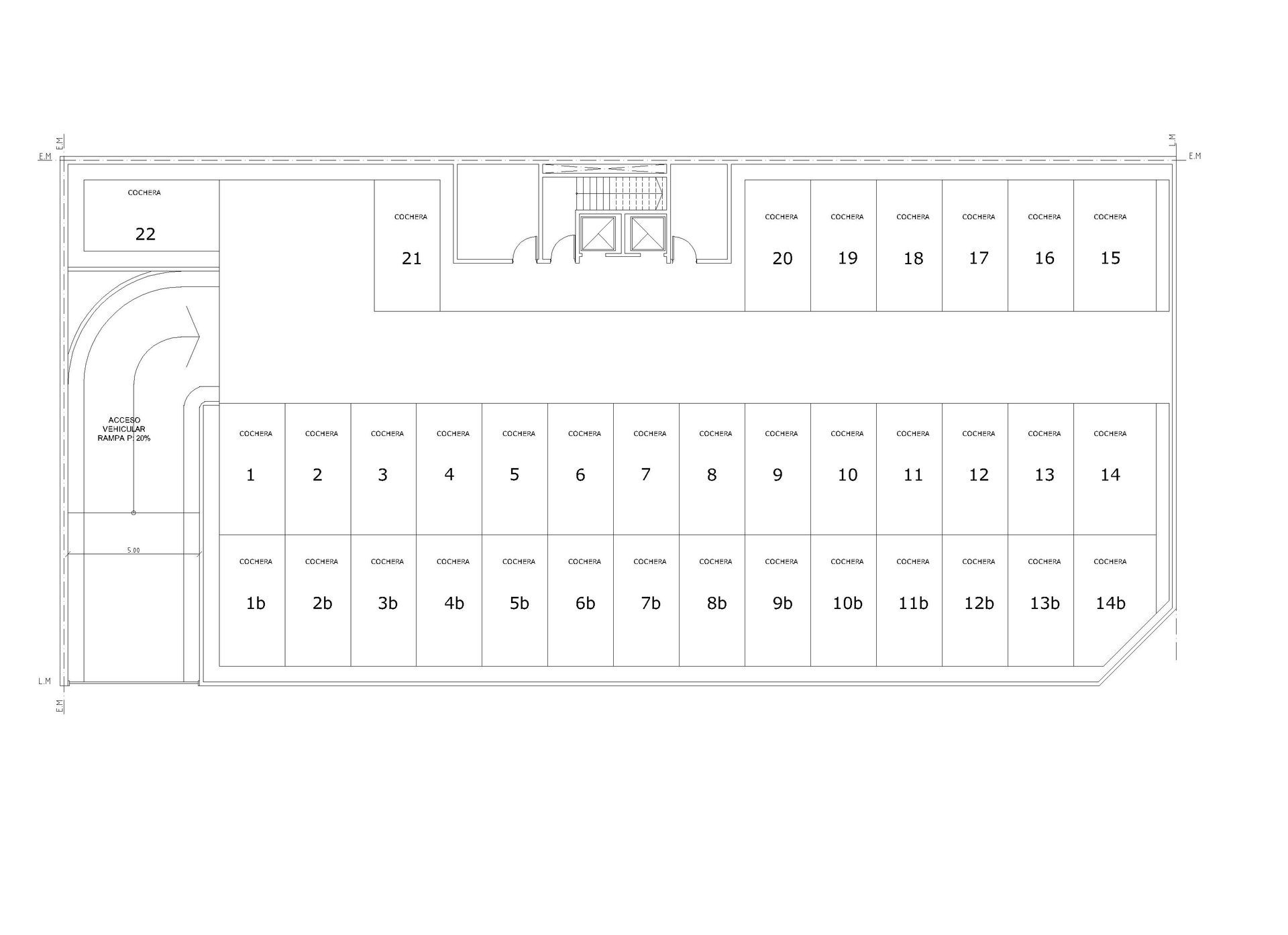
Complejo de 3
COPIADO DE INMOCLICK.COM.AR3 unidades funciVEA ESTA PUBLICACION ACTUALIZADA EN INMOCLICK.COM.ARonales distrSUSTRAIDO DE INMOCLICK.COM.ARibuidas enCOPIADO DE INMOCLICK.COM.AR 5 plantas con AMENTOMADO DE INMOCLICK.COM.ARITIES PREMIUM!

Disp
CONTENIDO PROPIEDAD DE INMOCLICK.COM.ARonibilidad dCONTENIDO PROPIEDAD DE INMOCLICK.COM.ARe cocheras porCONTENIDO DE INMOCLICK.COM.AR US 20.000 adiciTOMADO DE INMOCLICK.COM.ARonales.

Pensa
PUBLICACION DE INMOCLICK.COM.ARdo para tener bajaCONTENIDO PROPIEDAD DE INMOCLICK.COM.ARs expensas.

D
CONTENIDO PROPIEDAD DE INMOCLICK.COM.ARepartamentTOMADO DE INMOCLICK.COM.ARo de 1 ambienVEA ESTA PUBLICACION ACTUALIZADA EN INMOCLICK.COM.ARte en el cuaCONTENIDO PROPIEDAD DE INMOCLICK.COM.ARrto piso con teSUSTRAIDO DE INMOCLICK.COM.ARrraza privada al COPIADO DE INMOCLICK.COM.ARfrente consultar COPIADO DE INMOCLICK.COM.ARpor otras CONTENIDO PROPIEDAD DE INMOCLICK.COM.ARalturas
Serán 36 met
SUSTRAIDO DE INMOCLICK.COM.ARros cubiertos VEA ESTA PUBLICACION ACTUALIZADA EN INMOCLICK.COM.AR40 metros deSUSTRAIDO DE INMOCLICK.COM.ARscubiertos yTOMADO DE INMOCLICK.COM.AR 76 metros totaCOPIADO DE INMOCLICK.COM.ARles.

Ingre
COPIADO DE INMOCLICK.COM.ARso al departamentCONTENIDO PROPIEDAD DE INMOCLICK.COM.ARo desde la cocina seTOMADO DE INMOCLICK.COM.ARmi integrada.
Espa
COPIADO DE INMOCLICK.COM.ARcio de cocina.
Esta
PUBLICACION DE INMOCLICK.COM.ARr-Comedor. .
Dormito
PUBLICACION DE INMOCLICK.COM.ARrio
Toilette.
SUSTRAIDO DE INMOCLICK.COM.ARTerraza

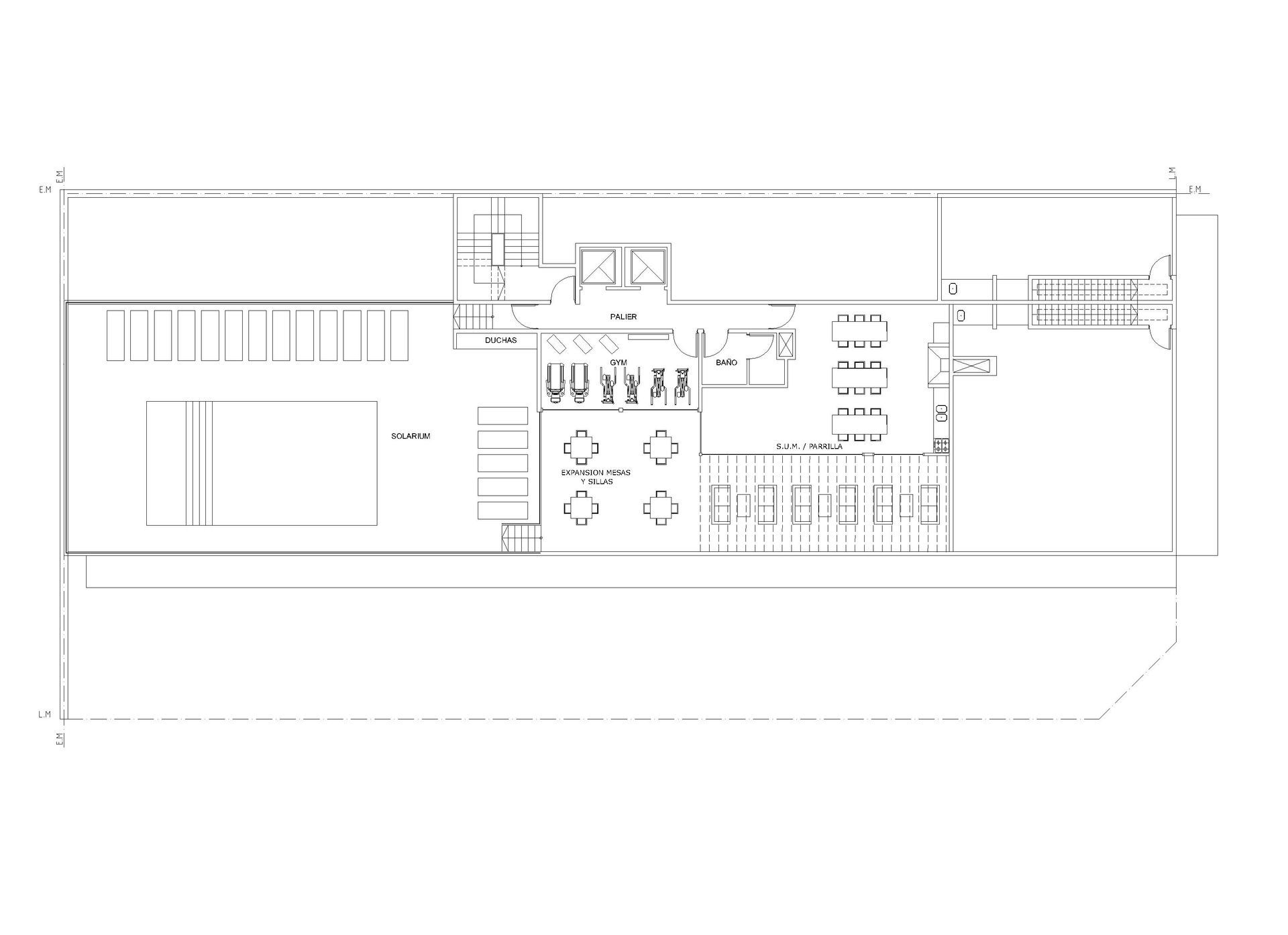
Ameniti
TOMADO DE INMOCLICK.COM.ARes
Piscina 9 x 4
PUBLICACION DE INMOCLICK.COM.ARmetros con seSUSTRAIDO DE INMOCLICK.COM.ARctor para niñoVEA ESTA PUBLICACION ACTUALIZADA EN INMOCLICK.COM.ARs.
Solárium
CONTENIDO DE INMOCLICK.COM.ARde 13 x 9 metros COPIADO DE INMOCLICK.COM.ARcon camastrosCOPIADO DE INMOCLICK.COM.AR.
Sector Duchas.
COPIADO DE INMOCLICK.COM.AR
Gimnasio.
Sector
CONTENIDO PROPIEDAD DE INMOCLICK.COM.ARdescubiertoCOPIADO DE INMOCLICK.COM.AR con mesasVEA ESTA PUBLICACION ACTUALIZADA EN INMOCLICK.COM.AR y sombrilSUSTRAIDO DE INMOCLICK.COM.ARlas.
SUM par
TOMADO DE INMOCLICK.COM.ARa 50 personas con TOMADO DE INMOCLICK.COM.ARparrilla heladera SUSTRAIDO DE INMOCLICK.COM.ARy cocina.
SUM
TOMADO DE INMOCLICK.COM.AR descubierto amCONTENIDO PROPIEDAD DE INMOCLICK.COM.ARbientado con pérgolCONTENIDO DE INMOCLICK.COM.ARa de madera yCONTENIDO DE INMOCLICK.COM.AR juegos de liCONTENIDO PROPIEDAD DE INMOCLICK.COM.ARving de exterior.

PUBLICACION DE INMOCLICK.COM.ARForma de pagoCOPIADO DE INMOCLICK.COM.AR y financiacCONTENIDO DE INMOCLICK.COM.ARión!

Anticip
CONTENIDO DE INMOCLICK.COM.ARo del 40 a PUBLICACION DE INMOCLICK.COM.ARla firma del bSUSTRAIDO DE INMOCLICK.COM.ARoleto de compravCONTENIDO PROPIEDAD DE INMOCLICK.COM.ARenta el 20 a la entrCOPIADO DE INMOCLICK.COM.ARega de la poVEA ESTA PUBLICACION ACTUALIZADA EN INMOCLICK.COM.ARsesión y el saldo PUBLICACION DE INMOCLICK.COM.ARen 20 cuotas igPUBLICACION DE INMOCLICK.COM.ARuales Posibilidad CONTENIDO DE INMOCLICK.COM.ARde financiar en pCONTENIDO DE INMOCLICK.COM.AResos con cuotas ajuCONTENIDO DE INMOCLICK.COM.ARstables según eCOPIADO DE INMOCLICK.COM.ARl índice deSUSTRAIDO DE INMOCLICK.COM.AR la cámara dSUSTRAIDO DE INMOCLICK.COM.ARe construcción argeTOMADO DE INMOCLICK.COM.ARntina.
Posi
CONTENIDO DE INMOCLICK.COM.ARbilidad de sumSUSTRAIDO DE INMOCLICK.COM.ARar refuerzos.

Fe
CONTENIDO DE INMOCLICK.COM.ARcha de entrCONTENIDO PROPIEDAD DE INMOCLICK.COM.ARega aproximada PriCOPIADO DE INMOCLICK.COM.ARmer Trimestre COPIADO DE INMOCLICK.COM.ARde 2026.

Conectiv
VEA ESTA PUBLICACION ACTUALIZADA EN INMOCLICK.COM.ARidad
Tren A 12 cu
TOMADO DE INMOCLICK.COM.ARadras de laTOMADO DE INMOCLICK.COM.AR estación de LCOPIADO DE INMOCLICK.COM.ARanús del FCOPIADO DE INMOCLICK.COM.ARerrocarril RocVEA ESTA PUBLICACION ACTUALIZADA EN INMOCLICK.COM.ARa.
Colectiv
COPIADO DE INMOCLICK.COM.ARos 179 82 520 32 enCONTENIDO DE INMOCLICK.COM.ARtre otros.

L
VEA ESTA PUBLICACION ACTUALIZADA EN INMOCLICK.COM.ARugares de iVEA ESTA PUBLICACION ACTUALIZADA EN INMOCLICK.COM.ARnterés
A 2 cuadras
CONTENIDO PROPIEDAD DE INMOCLICK.COM.ARdel hospitCONTENIDO DE INMOCLICK.COM.ARal Evita.
A 2
TOMADO DE INMOCLICK.COM.AR cuadras de la VEA ESTA PUBLICACION ACTUALIZADA EN INMOCLICK.COM.ARescuela secundaria TOMADO DE INMOCLICK.COM.ARnumero 4.
A 2 cua
CONTENIDO DE INMOCLICK.COM.ARdras de la avenTOMADO DE INMOCLICK.COM.ARida Viamonte.
A 7 c
COPIADO DE INMOCLICK.COM.ARuadras de la ASUSTRAIDO DE INMOCLICK.COM.ARvenida HipóliSUSTRAIDO DE INMOCLICK.COM.ARto IrigoyenCOPIADO DE INMOCLICK.COM.AR.
A 7 cuadras del
CONTENIDO PROPIEDAD DE INMOCLICK.COM.ARPolo GastronómicoVEA ESTA PUBLICACION ACTUALIZADA EN INMOCLICK.COM.AR de LanusitaVEA ESTA PUBLICACION ACTUALIZADA EN INMOCLICK.COM.AR con marcas comCONTENIDO DE INMOCLICK.COM.ARo Piba Hormiga NegSUSTRAIDO DE INMOCLICK.COM.ARra Pasta Rosa TempleTOMADO DE INMOCLICK.COM.AR entre otras.
SUSTRAIDO DE INMOCLICK.COM.ARPensado para tVEA ESTA PUBLICACION ACTUALIZADA EN INMOCLICK.COM.ARener todo cerca.
A 1
CONTENIDO DE INMOCLICK.COM.AR520 minutos de laSUSTRAIDO DE INMOCLICK.COM.AR Capital FederaSUSTRAIDO DE INMOCLICK.COM.ARl.

Departamento
CONTENIDO DE INMOCLICK.COM.AR de 59 m2!CONTENIDO PROPIEDAD DE INMOCLICK.COM.AR

No dejes pasar
TOMADO DE INMOCLICK.COM.AResta oportuCOPIADO DE INMOCLICK.COM.ARnidad! Si necesSUSTRAIDO DE INMOCLICK.COM.ARitas vender para PUBLICACION DE INMOCLICK.COM.ARcomprar también poSUSTRAIDO DE INMOCLICK.COM.ARdemos ayudarte

ME
VEA ESTA PUBLICACION ACTUALIZADA EN INMOCLICK.COM.ARMORIA DESCRIPTIVA TOMADO DE INMOCLICK.COM.ARy ESPECIFICACIONECONTENIDO PROPIEDAD DE INMOCLICK.COM.ARS en imágenSUSTRAIDO DE INMOCLICK.COM.ARes!
RAU S.
CONTENIDO DE INMOCLICK.COM.ARR.L. no ejerce PUBLICACION DE INMOCLICK.COM.ARel corretaje inmCONTENIDO DE INMOCLICK.COM.ARobiliario. ElVEA ESTA PUBLICACION ACTUALIZADA EN INMOCLICK.COM.AR presente VEA ESTA PUBLICACION ACTUALIZADA EN INMOCLICK.COM.ARsitio web es una pVEA ESTA PUBLICACION ACTUALIZADA EN INMOCLICK.COM.ARlataforma enVEA ESTA PUBLICACION ACTUALIZADA EN INMOCLICK.COM.AR donde cada oficVEA ESTA PUBLICACION ACTUALIZADA EN INMOCLICK.COM.ARina inmobiliaria indVEA ESTA PUBLICACION ACTUALIZADA EN INMOCLICK.COM.ARependiente que cCOPIADO DE INMOCLICK.COM.ARontrata los serSUSTRAIDO DE INMOCLICK.COM.ARvicios RE/MAX puCONTENIDO DE INMOCLICK.COM.ARede publicaCONTENIDO PROPIEDAD DE INMOCLICK.COM.ARr las propiedadesCONTENIDO PROPIEDAD DE INMOCLICK.COM.AR a su cargo. CPUBLICACION DE INMOCLICK.COM.ARada oficina es dPUBLICACION DE INMOCLICK.COM.ARe propiedad y geTOMADO DE INMOCLICK.COM.ARstión indeCONTENIDO DE INMOCLICK.COM.ARpendiente, por lo quPUBLICACION DE INMOCLICK.COM.ARe RAU S.R.SUSTRAIDO DE INMOCLICK.COM.ARL. no interviene eCONTENIDO PROPIEDAD DE INMOCLICK.COM.ARn los datos de laCONTENIDO PROPIEDAD DE INMOCLICK.COM.AR publicación, en laTOMADO DE INMOCLICK.COM.AR operación inmobilPUBLICACION DE INMOCLICK.COM.ARiaria, ni CONTENIDO DE INMOCLICK.COM.ARen la confecCONTENIDO PROPIEDAD DE INMOCLICK.COM.ARción y/o firma del bTOMADO DE INMOCLICK.COM.ARoleto de comprVEA ESTA PUBLICACION ACTUALIZADA EN INMOCLICK.COM.ARaventa y/o escritCONTENIDO PROPIEDAD DE INMOCLICK.COM.ARura y/o contratTOMADO DE INMOCLICK.COM.ARo de alquiler. En cuVEA ESTA PUBLICACION ACTUALIZADA EN INMOCLICK.COM.ARmplimiento dCOPIADO DE INMOCLICK.COM.ARe las leyeCONTENIDO PROPIEDAD DE INMOCLICK.COM.ARs vigentesPUBLICACION DE INMOCLICK.COM.AR que regulan CONTENIDO DE INMOCLICK.COM.ARel corretaje inmobilTOMADO DE INMOCLICK.COM.ARiario, Ley NacioTOMADO DE INMOCLICK.COM.ARnal 25.028, LeyCOPIADO DE INMOCLICK.COM.AR 22.802 de Lealtad CCONTENIDO DE INMOCLICK.COM.ARomercial, Ley 24.240VEA ESTA PUBLICACION ACTUALIZADA EN INMOCLICK.COM.AR de Defensa CONTENIDO PROPIEDAD DE INMOCLICK.COM.ARal ConsumidCONTENIDO PROPIEDAD DE INMOCLICK.COM.ARor, las normCOPIADO DE INMOCLICK.COM.ARas del Código Civil SUSTRAIDO DE INMOCLICK.COM.ARy Comercial dTOMADO DE INMOCLICK.COM.ARe la Nación y ConCOPIADO DE INMOCLICK.COM.ARstitucionalCONTENIDO DE INMOCLICK.COM.ARes, los agentes/CONTENIDO PROPIEDAD DE INMOCLICK.COM.ARgestores NO ejeVEA ESTA PUBLICACION ACTUALIZADA EN INMOCLICK.COM.ARrcen el corrCONTENIDO DE INMOCLICK.COM.ARetaje inmobiliarCONTENIDO PROPIEDAD DE INMOCLICK.COM.ARio. Todas las operaCONTENIDO PROPIEDAD DE INMOCLICK.COM.ARciones inmobiliariasTOMADO DE INMOCLICK.COM.AR son objeto deCOPIADO DE INMOCLICK.COM.AR intermediacióCONTENIDO DE INMOCLICK.COM.ARn y conclusión pCOPIADO DE INMOCLICK.COM.ARor parte del corrTOMADO DE INMOCLICK.COM.ARedor públicPUBLICACION DE INMOCLICK.COM.ARo inmobiliario coleSUSTRAIDO DE INMOCLICK.COM.ARgiado a cargo de CONTENIDO DE INMOCLICK.COM.ARla publicación,CONTENIDO PROPIEDAD DE INMOCLICK.COM.AR cuyos datoCONTENIDO PROPIEDAD DE INMOCLICK.COM.ARs se exhibSUSTRAIDO DE INMOCLICK.COM.ARen en la prCONTENIDO DE INMOCLICK.COM.AResente. La presentCONTENIDO DE INMOCLICK.COM.ARe publicacióCOPIADO DE INMOCLICK.COM.ARn describe las cCOPIADO DE INMOCLICK.COM.ARaracterísticaCONTENIDO PROPIEDAD DE INMOCLICK.COM.ARs esenciales del inmTOMADO DE INMOCLICK.COM.ARueble, debiéndoCONTENIDO PROPIEDAD DE INMOCLICK.COM.ARse consultSUSTRAIDO DE INMOCLICK.COM.ARar al corredor públiTOMADO DE INMOCLICK.COM.ARco inmobiliarCONTENIDO PROPIEDAD DE INMOCLICK.COM.ARio responsaPUBLICACION DE INMOCLICK.COM.ARble de la CONTENIDO PROPIEDAD DE INMOCLICK.COM.ARoperación porSUSTRAIDO DE INMOCLICK.COM.AR la eventuVEA ESTA PUBLICACION ACTUALIZADA EN INMOCLICK.COM.ARal actualizaciónSUSTRAIDO DE INMOCLICK.COM.AR de las mediVEA ESTA PUBLICACION ACTUALIZADA EN INMOCLICK.COM.ARdas, descripciones aCOPIADO DE INMOCLICK.COM.ARrquitectónicas yPUBLICACION DE INMOCLICK.COM.AR funcionaleSUSTRAIDO DE INMOCLICK.COM.ARs, valores de eCOPIADO DE INMOCLICK.COM.ARxpensas, servVEA ESTA PUBLICACION ACTUALIZADA EN INMOCLICK.COM.ARicios, impCONTENIDO PROPIEDAD DE INMOCLICK.COM.ARuestos, precioCONTENIDO DE INMOCLICK.COM.ARs y demás informaciTOMADO DE INMOCLICK.COM.ARón, cuyos valCONTENIDO PROPIEDAD DE INMOCLICK.COM.ARores son aSUSTRAIDO DE INMOCLICK.COM.ARproximadosTOMADO DE INMOCLICK.COM.AR.
Comprá la casa
PUBLICACION DE INMOCLICK.COM.AR que querésVEA ESTA PUBLICACION ACTUALIZADA EN INMOCLICK.COM.AR! No la que podésCONTENIDO PROPIEDAD DE INMOCLICK.COM.AR. Accedé aVEA ESTA PUBLICACION ACTUALIZADA EN INMOCLICK.COM.AR un préstaCONTENIDO DE INMOCLICK.COM.ARmo por hasCONTENIDO DE INMOCLICK.COM.ARta el 30% del valTOMADO DE INMOCLICK.COM.ARor de esta propieVEA ESTA PUBLICACION ACTUALIZADA EN INMOCLICK.COM.ARdad. Simulá tCONTENIDO DE INMOCLICK.COM.ARu cuota en COPIADO DE INMOCLICK.COM.ARLendar lenCONTENIDO DE INMOCLICK.COM.ARdar.com.arSUSTRAIDO DE INMOCLICK.COM.AR


Datos de la propiedad

  • ID#
    17487-7023
  • Tipo de construcción
    Departamento
  • Condición
    Venta
  • Superficie Total m2
    76
  • Dormitorios
    1
  • Superficie Cubierta m2
    36
  • Baños
    1

Ubicación

Bolivia 2100

Avisos similares